烟台这里将建10栋商住楼宇
烟台搜狐焦点 2021-02-07 09:07:34
用手机看
扫描到手机,新闻随时看
扫一扫,用手机看文章
更加方便分享给朋友
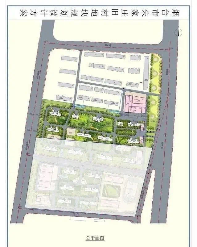
近日,烟台市自然资源和规划局核发公示《朱家庄旧村改造项目》。文件显示,总建筑面积141699平方米,其中地上100699平方米,地下设备层及车库41000平方米。 朱家庄位于芝罘区南部,地处蓁山路以南、机场路以西,向西可直达福山,向东可直通莱山,地处三区核心地带,周边生活设施配套齐全,公共资源配套完
近日,烟台市自然资源和规划局核发公示《朱家庄旧村改造项目》。文件显示,总建筑面积141699平方米,其中地上100699平方米,地下设备层及车库41000平方米。


朱家庄位于芝罘区南部,地处蓁山路以南、机场路以西,向西可直达福山,向东可直通莱山,地处三区核心地带,周边生活设施配套齐全,公共资源配套完善,各类商业产业项目丰富。规划显示,该项目由1栋23层的商务办公楼、1栋27层的商住楼、1栋25层的住宅楼、5栋18层住宅楼、1栋27层的住宅楼和1栋24层的住宅楼组成。

去年9月23日,朱家庄架空改电缆入地工程《建设工程规划许可证》核发公示,公示内容显示,朱家庄架空改电缆入地工程西起规划路,向东穿过青年南路,再向南穿过朱家庄旧村、机场路,至通世路隧道西侧。建设单位为烟台市政府投资工程建设服务中心。
声明:本文由入驻焦点开放平台的作者撰写,除焦点官方账号外,观点仅代表作者本人,不代表焦点立场。
